Popis
Ponúkame na predaj stavebný pozemok v Mariánke na Tálkoch .Výmera pozemku je 800 m², čo je podľa aktuálnych regulatívov minimálna výmera na získanie stavebného povolenia. Pozemok má južnú orientáciu z pohľadu navrhovanej dispozície záhrady a dvora voči domu.
Rozmery pozemku sú cca 40m (dĺžka) x cca 12 – až 27m (šírka).
K dispozícii k pozemku sú:
– Platná Územno-plánovacia informácia (UPI)
– Geodetické zameranie s výškopisom a s prípojkami inžinierskych sietí,kanalizácia,voda,elektrika,
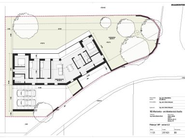
– Architektonická štúdia (odkonzultovaná so Stavebným úradom), k dispozícii sú ďalšie 3 varianty, o ktorých sa uvažovalo, a je možné dotiahnuť projekt s pôvodnou architektonickou kanceláriou, ktorá rieši projekty v Marianke a má skúsenosti s touto lokalitou.IS voda a elektrika na pozemku,kanalizácia v ceste.Možnsoť čerpania hypotekárneho úveru,vybavenie HU v cene,províziu RK neplatíte.
Cena je 330 eur/m2.Bližšie info Vám radi poskytneme v našej RK.
BONUS:
V prípade rýchleho realizovania kúpy,má klient do 30.09.2024 zdarma kompletný právny servis,vybavenie hypotekárneho úveru ,poistenie hypotéky a znalecký posudok.Bližšie info kontak +421 944 662 524
+421 918 108 037
Rozmery pozemku sú cca 40m (dĺžka) x cca 12 – až 27m (šírka).
K dispozícii k pozemku sú:
– Platná Územno-plánovacia informácia (UPI)
– Geodetické zameranie s výškopisom a s prípojkami inžinierskych sietí,kanalizácia,voda,elektrika,
– Architektonická štúdia (odkonzultovaná so Stavebným úradom), k dispozícii sú ďalšie 3 varianty, o ktorých sa uvažovalo, a je možné dotiahnuť projekt s pôvodnou architektonickou kanceláriou, ktorá rieši projekty v Marianke a má skúsenosti s touto lokalitou.IS voda a elektrika na pozemku,kanalizácia v ceste.Možnsoť čerpania hypotekárneho úveru,vybavenie HU v cene,províziu RK neplatíte.
Cena je 330 eur/m2.Bližšie info Vám radi poskytneme v našej RK.
BONUS:
V prípade rýchleho realizovania kúpy,má klient do 30.09.2024 zdarma kompletný právny servis,vybavenie hypotekárneho úveru ,poistenie hypotéky a znalecký posudok.Bližšie info kontak +421 944 662 524
+421 918 108 037
Špecifické detaily inzerátu
TYP
predaj
Pozemky
stavebné
Vlastníctvo
osobné
Cena za m2:
330
Umiestnenie
zastavaná časť obce
Terén
rovinatý
Odpady:
kanalizácia
Elektrika:
pri pozemku
Inžinierske siete:
elektrika
Inzerent:
Realitná kancelária
Lokalita
Slovensko
Na Tálkoch, 90033
Na Tálkoch, 90033









