Popis
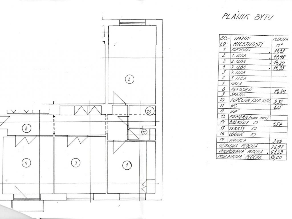
– byt má výmeru 76,97 m2 + BALKÓN o výmere 1,57 m2 + pivnica o výmere 3,63 m2
– nachádza sa na 3. poschodí 3 poschodového TEHLOVÉHO bytového domu. Bytový dom nemá energetický certifikát
– pozemok pod domom je v spoluvlastníctve vlastníkov bytov v dome
REKONŠTRUKCIA NA KĽÚČ BEZ STAROSTÍ!
Vy sami si počas rekonštrukcie môžete vybrať materiály, ktoré sa Vám najviac páčia.
Rekonštrukčné práce zahŕňajú: kompletne nová ELEKTROINŠTALÁCIA v celom byte (s revíznou správou), osadené nové vypínače a zásuvky zn. Legrand; nové rozvody VODY; stierky a maľovky; plávajúce laminátové podlahy; bezpečnostné vchodové dvere; interiérové dvere a zárubne; v kúpeľni nová dlažba, obklad, vaňa a batéria so sprchovacím setom zn. Grohe, kúpeľňová skrinka s umývadlom a batériou zn. Grohe; WC – závesný podomietkový systém.
HLAVNÉ VÝHODY BYTU:
– samostatné, nepriechodné izby
– prakticky dispozične riešený
– samostatná kúpeľňa a WC
– tehlový bytový dom
– rekonštrukcia bez starostí
– možnosť výberu materiálov podľa vlastných predstáv
– vhodný aj na investíciu za účelom prenájmu
– dobrá občianska vybavenosť- bezproblémové parkovanie
O LOKALITE: v okolí sa nachádza kompletná občianska vybavenosť, pešia dostupnosť do centra mesta, gastro prevádzky, potraviny, služby, nová autobusová stanica, obchodné centrum Eurovea, nábrežie Dunaja, Medická záhrada, kultúra, športoviská…
CENA: 325 000 €
K cene bude pripočítaná provízia vo výške 2% z kúpnej ceny.
Provízia zahŕňa kvalitné realitné a právne služby spojené s prevodom nehnuteľnosti:
– vypracovanie kompletnej zmluvnej dokumentácie (zmluva o budúcej zmluve, rezervačná zmluva, zmluva o prevode vlastníctva bytu, návrh na vklad vlastníckych práv, prípadné dodatky, protokol o prevzatí a odovzdaní nehnuteľnosti…)
– notárske poplatky spojené s overovaním podpisov predávajúceho na zmluve o prevode vlastníctva bytu
– správny poplatok (kolok v hodnote 66,- EUR) spojený s návrhom na vklad vlastníckych práv
– zabezpečenie promptného ohodnotenia nehnuteľnosti prostredníctvom znalca, ktorý je akceptovaný všetkými bankami
Možnosť financovania prostredníctvom hypotekárneho úveru. Ponúkame bezplatné stretnutie a poradenstvo s hypotekárnym špecialistom priamo u nás v kancelárii.
– nachádza sa na 3. poschodí 3 poschodového TEHLOVÉHO bytového domu. Bytový dom nemá energetický certifikát
– pozemok pod domom je v spoluvlastníctve vlastníkov bytov v dome
REKONŠTRUKCIA NA KĽÚČ BEZ STAROSTÍ!
Vy sami si počas rekonštrukcie môžete vybrať materiály, ktoré sa Vám najviac páčia.
Rekonštrukčné práce zahŕňajú: kompletne nová ELEKTROINŠTALÁCIA v celom byte (s revíznou správou), osadené nové vypínače a zásuvky zn. Legrand; nové rozvody VODY; stierky a maľovky; plávajúce laminátové podlahy; bezpečnostné vchodové dvere; interiérové dvere a zárubne; v kúpeľni nová dlažba, obklad, vaňa a batéria so sprchovacím setom zn. Grohe, kúpeľňová skrinka s umývadlom a batériou zn. Grohe; WC – závesný podomietkový systém.
HLAVNÉ VÝHODY BYTU:
– samostatné, nepriechodné izby
– prakticky dispozične riešený
– samostatná kúpeľňa a WC
– tehlový bytový dom
– rekonštrukcia bez starostí
– možnosť výberu materiálov podľa vlastných predstáv
– vhodný aj na investíciu za účelom prenájmu
– dobrá občianska vybavenosť- bezproblémové parkovanie
O LOKALITE: v okolí sa nachádza kompletná občianska vybavenosť, pešia dostupnosť do centra mesta, gastro prevádzky, potraviny, služby, nová autobusová stanica, obchodné centrum Eurovea, nábrežie Dunaja, Medická záhrada, kultúra, športoviská…
CENA: 325 000 €
K cene bude pripočítaná provízia vo výške 2% z kúpnej ceny.
Provízia zahŕňa kvalitné realitné a právne služby spojené s prevodom nehnuteľnosti:
– vypracovanie kompletnej zmluvnej dokumentácie (zmluva o budúcej zmluve, rezervačná zmluva, zmluva o prevode vlastníctva bytu, návrh na vklad vlastníckych práv, prípadné dodatky, protokol o prevzatí a odovzdaní nehnuteľnosti…)
– notárske poplatky spojené s overovaním podpisov predávajúceho na zmluve o prevode vlastníctva bytu
– správny poplatok (kolok v hodnote 66,- EUR) spojený s návrhom na vklad vlastníckych práv
– zabezpečenie promptného ohodnotenia nehnuteľnosti prostredníctvom znalca, ktorý je akceptovaný všetkými bankami
Možnosť financovania prostredníctvom hypotekárneho úveru. Ponúkame bezplatné stretnutie a poradenstvo s hypotekárnym špecialistom priamo u nás v kancelárii.
Špecifické detaily inzerátu
Byty
3 izbový
TYP
predaj
Vlastníctvo
osobné
Úžitková plocha
76,97
Pivnica m2:
3,63
Kúpelňa:
Nie
Kuchyňa:
Nie
Loggia:
Nie
Balkón:
1
Terasa:
Nie
Garáž:
Nie
Špajza:
Nie
Šatník:
Nie
Výťah
nie
Stav objektu
neuvedené
Konštrukcia:
tehlový
Kúrenie:
ústredné
Zariadenie
nezariadený
Pivnica:
murovaná
Energetický certifikát:
neuvedené
Inzerent:
Realitná kancelária
Lokalita
Ružinov, Bratislava II, Bratislavský kraj, Slovensko

Cena:
325 000 €
Pridal
















